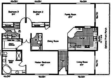
Model KMCK-52865
2086 Square Feet
3 Bedroom, 2 Bath
This KARSTEN McKenzie Triplewide
is the Home that has veryone talking!  A front porch home that accents a great residential exterior.  Formal living
and dining rooms, with a family room off the kitchen.
Easy access to large front deck through sliding glass door!