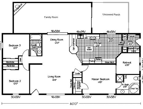
Model KMCK-60862
Triplewide
1965 Square Feet
3 Bedroom, 2 Bath
The KARSTEN MCKENZIE,
The Total Package!
All the same great features but with a Family room
"Energy Plus" InsulationPackage,
Great Interior, Great Exterior, Great Free Options.
Packaged with a list of standard options to numerous
to list (ask to see), an incredible value!.