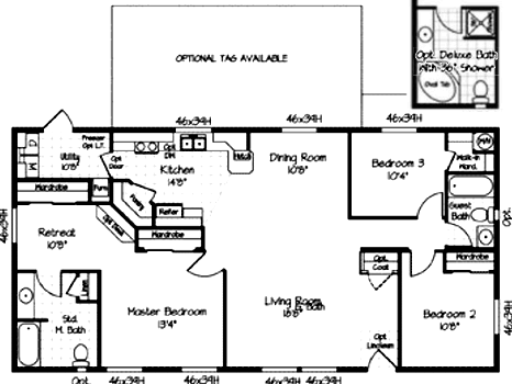
Model KS-52113
1387 Square Feet
3 Bedroom, 2 Bath
The KARSTEN STARVIEW
This popular plan feature a large kitchen w /pantry,
and a great master bedroom featuring a retreat area, perfect for a computer, a sewing room, or an office!